popup cover
დაგვიტოვე ნომერი 🚀
ჩვენი უძრავი ქონების ექსპერტი შეგარჩევინებთ სასურველ ბინას, თქვენზე მორგებული გადახდის პირობით💛
X

დაკავშირების მოთხოვნა

თუ თქვენ გაქვთ რაიმე შეკითხვა ან გჭირდებათ პირადი მენეჯერის დახმარება დატოვეთ თქვენი კოორდინატები და ჩვენ დაგიკავშირდებით.

*7171
back-arrow
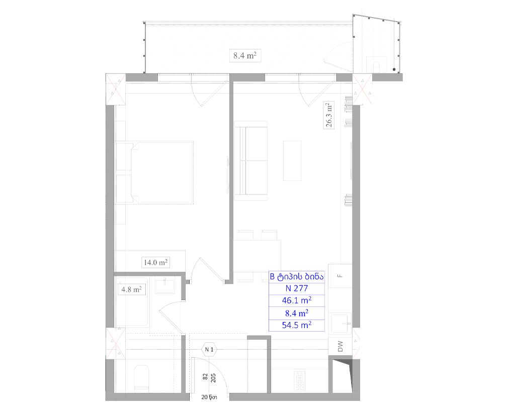
ბინა 277 ბინის ნომერი
54.5 საერთო ფართი
ჰოლი 26.3
საერთო ოთახი 14
საძინებელი 4.8
სველი წერტილი 8.4
პირველადი შენატანი
0 0
ერთიანი გადახდის ფასი
0 0
ერთიანი გადახდის კვ.მ ფასი
0 0
დაკავშირების მოთხოვნა
ჩამოტვირთე PDF
ბინა 277
ბინა 277
3D
2D
23 7
  • ბინა 277 ბინის ნომერი
  • 1 საძინებელი
  • 54.5 საერთო ფართი
  • 0 კვადრატულის ფასი
სრულად ნახვა
ბინა 277
ბინა 277
3D
2D
26.3 18
14 15
4.8 22
8.4 19
ბინის გადასახადი
პირველადი შენატანი
0
ერთიანი გადახდის ფასი
0 0
ერთიანი გადახდის კვ.მ ფასი
0 0
დაკავშირების მოთხოვნა
ჩამოტვირთე PDF
შეარჩიეთ თქვენი მოთხოვნების მიხედვით