popup cover
დაგვიტოვე ნომერი 🚀
ჩვენი უძრავი ქონების ექსპერტი შეგარჩევინებთ სასურველ ბინას, თქვენზე მორგებული გადახდის პირობით💛
X

დაკავშირების მოთხოვნა

თუ თქვენ გაქვთ რაიმე შეკითხვა ან გჭირდებათ პირადი მენეჯერის დახმარება დატოვეთ თქვენი კოორდინატები და ჩვენ დაგიკავშირდებით.

*7171
back-arrow
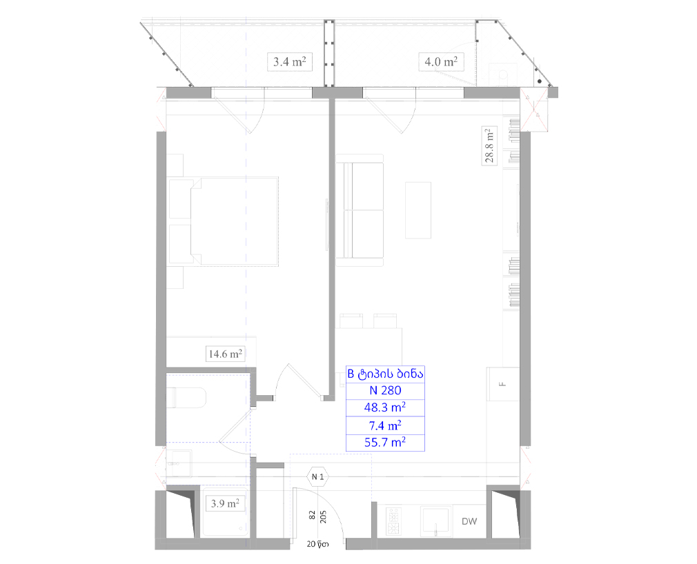
ბინა 280 ბინის ნომერი
55.7 საერთო ფართი
საერთო ოთახი 28.8
საძინებელი 14.6
სველი წერტილი 3.9
აივანი 1 4
აივანი 2 3.4
პირველადი შენატანი
0 0
ერთიანი გადახდის ფასი
0 0
ერთიანი გადახდის კვ.მ ფასი
0 0
დაკავშირების მოთხოვნა
ჩამოტვირთე PDF
ბინა 280
ბინა 280
3D
2D
23 7
  • ბინა 280 ბინის ნომერი
  • 1 საძინებელი
  • 55.7 საერთო ფართი
  • 0 კვადრატულის ფასი
სრულად ნახვა
ბინა 280
ბინა 280
3D
2D
28.8 15
14.6 22
3.9 19
4 20
3.4 21
ბინის გადასახადი
პირველადი შენატანი
0
ერთიანი გადახდის ფასი
0 0
ერთიანი გადახდის კვ.მ ფასი
0 0
დაკავშირების მოთხოვნა
ჩამოტვირთე PDF
შეარჩიეთ თქვენი მოთხოვნების მიხედვით