popup cover
დაგვიტოვე ნომერი 🚀
ჩვენი უძრავი ქონების ექსპერტი შეგარჩევინებთ სასურველ ბინას, თქვენზე მორგებული გადახდის პირობით💛
X

დაკავშირების მოთხოვნა

თუ თქვენ გაქვთ რაიმე შეკითხვა ან გჭირდებათ პირადი მენეჯერის დახმარება დატოვეთ თქვენი კოორდინატები და ჩვენ დაგიკავშირდებით.

*7171
back-arrow
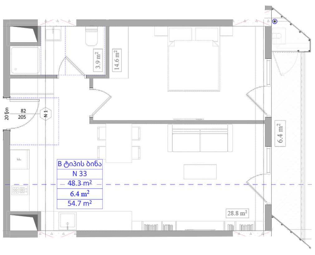
ბინა 33 ბინის ნომერი
54.7 საერთო ფართი
საერთო ოთახი 28.8
საძინებელი 14.6
სველი წერტილი 3.9
აივანი 6.4
პირველადი შენატანი
0 0
ერთიანი გადახდის ფასი
140,207 51,965
ერთიანი გადახდის კვ.მ ფასი
2,563 950
დაკავშირების მოთხოვნა
ჩამოტვირთე PDF გაყიდულია
ბინა 33
ბინა 33
3D
2D
4 კორპუსი 7
  • ბინა 33 ბინის ნომერი
  • 1 საძინებელი
  • 54.7 საერთო ფართი
  • 2,833 კვადრატულის ფასი
სრულად ნახვა
ბინა 33
ბინა 33
3D
2D
28.8 15
14.6 22
3.9 19
6.4 28
ბინის გადასახადი
პირველადი შენატანი
0
ერთიანი გადახდის ფასი
140,207 51,965
ერთიანი გადახდის კვ.მ ფასი
2,563 950
დაკავშირების მოთხოვნა
ჩამოტვირთე PDF
შეარჩიეთ თქვენი მოთხოვნების მიხედვით