popup cover
დაგვიტოვე ნომერი 🚀
ჩვენი უძრავი ქონების ექსპერტი შეგარჩევინებთ სასურველ ბინას, თქვენზე მორგებული გადახდის პირობით💛
X

დაკავშირების მოთხოვნა

თუ თქვენ გაქვთ რაიმე შეკითხვა ან გჭირდებათ პირადი მენეჯერის დახმარება დატოვეთ თქვენი კოორდინატები და ჩვენ დაგიკავშირდებით.

*7171
back-arrow
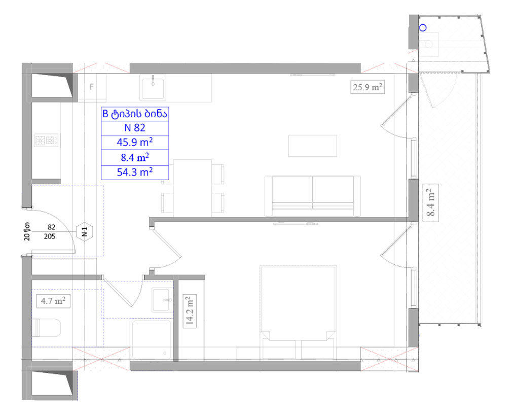
ბინა 82 ბინის ნომერი
54.3 საერთო ფართი
საერთო ოთახი 25.9
საძინებელი 14.2
სველი წერტილი 4.7
აივანი 8.4
პირველადი შენატანი
0 0
ერთიანი გადახდის ფასი
131,827 48,870
ერთიანი გადახდის კვ.მ ფასი
2,428 900
დაკავშირების მოთხოვნა
ჩამოტვირთე PDF გაყიდულია
ბინა 82
ბინა 82
3D
2D
8 კორპუსი 7
  • ბინა 82 ბინის ნომერი
  • 1 საძინებელი
  • 54.3 საერთო ფართი
  • 2,563 კვადრატულის ფასი
სრულად ნახვა
ბინა 82
ბინა 82
3D
2D
25.9 საერთო ოთახი
14.2 საძინებელი
4.7 სველი წერტილი
8.4 აივანი
ბინის გადასახადი
პირველადი შენატანი
0
ერთიანი გადახდის ფასი
131,827 48,870
ერთიანი გადახდის კვ.მ ფასი
2,428 900
დაკავშირების მოთხოვნა
ჩამოტვირთე PDF
შეარჩიეთ თქვენი მოთხოვნების მიხედვით