popup cover
დაგვიტოვე ნომერი 🚀
ჩვენი უძრავი ქონების ექსპერტი შეგარჩევინებთ სასურველ ბინას, თქვენზე მორგებული გადახდის პირობით💛
X

დაკავშირების მოთხოვნა

თუ თქვენ გაქვთ რაიმე შეკითხვა ან გჭირდებათ პირადი მენეჯერის დახმარება დატოვეთ თქვენი კოორდინატები და ჩვენ დაგიკავშირდებით.

*7171
back-arrow
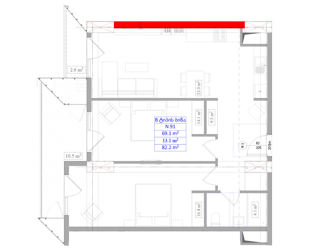
ბინა 91 ბინის ნომერი
82.2 საერთო ფართი
ჰოლი 9.3
საერთო ოთახი 23
საძინებელი 1 16.8
საძინებელი 2 14.1
სველი წერტილი 4.1
აივანი 1 10.5
აივანი 2.6
პირველადი შენატანი
0 0
ერთიანი გადახდის ფასი
188,474 69,870
ერთიანი გადახდის კვ.მ ფასი
2,293 850
დაკავშირების მოთხოვნა
ჩამოტვირთე PDF გაყიდულია
ბინა 91
ბინა 91
3D
2D
8 კორპუსი 7
  • ბინა 91 ბინის ნომერი
  • 2 საძინებელი
  • 82.2 საერთო ფართი
  • 2,428 კვადრატულის ფასი
სრულად ნახვა
ბინა 91
ბინა 91
3D
2D
9.3 ჰოლი
23 საერთო ოთახი
16.8 საძინებელი 1
14.1 საძინებელი 2
4.1 სველი წერტილი
10.5 აივანი 1
2.6 აივანი
ბინის გადასახადი
პირველადი შენატანი
0
ერთიანი გადახდის ფასი
188,474 69,870
ერთიანი გადახდის კვ.მ ფასი
2,293 850
დაკავშირების მოთხოვნა
ჩამოტვირთე PDF
შეარჩიეთ თქვენი მოთხოვნების მიხედვით